6 spatii comerciale de inchiriat zona Pipera, Bucuresti 251 - 479 mp

Caracteristici

ZONA
Pipera
Suprafata utila
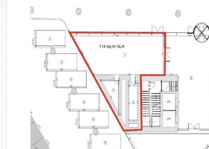
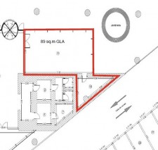
251 mp
An constructie
2024

Descriere

Spatiile sunt situate la parter beneficiind de 2 usi pe fata si o usa de acces in holul blocului. Vitrinele sunt generoase. Spatiile vor fi amenajate de fiecare chirias in parte in functie de specificul activitatii.

De asemenea in cadrul complexului sunt prevazute parcari speciale pentru vizitatori si spatiile comerciale.

Spatiile se preteaza pentru activitati de prestari servicii, showroomuri, activitati medicale, birouri. 

Nu se doreste activitate horeca!

download pdf
DE INCHIRIAT
Regatta cod
RGT39341

Contacteaza-ne

Comercial
+40724558848
retail@regatta.ro
Va rugam sa confirmati termenii si conditiile

Proprietati asemanatoare

Acest site foloseşte cookies. Navigând în continuare vă exprimați acordul asupra folosirii cookie-urilor.