Spatii birouri de inchiriat suprafete disponibile intre 337 mp - 691 mp zona Calea Victoriei, Bucuresti

Caracteristici

ZONA
Calea Victoriei
Suprafata utila
488 mp
Etaj
P+1

Descriere

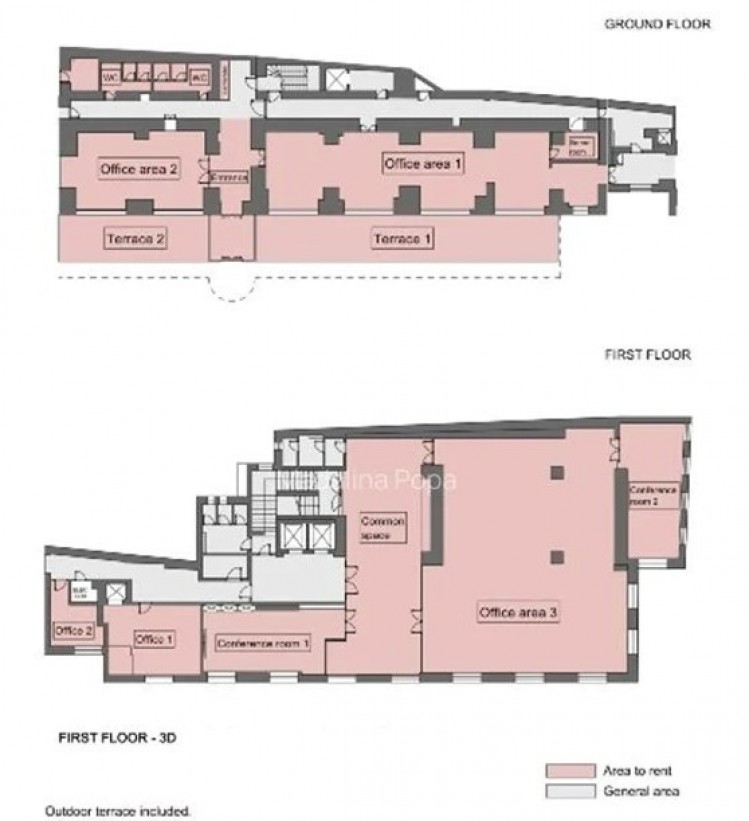
Spatiile sunt situate ultracentral in cadrul unui hotel de pe Calea Victoriei.

Spatiile sunt dispuse pe parter si etaj.

Facilitati:

Spatiul este perfect pretabil pentru activitatea de birouri, sali de conferinta, centru beauty;

Toate utilitatile;

Sistem centralizat incalzire/ racire;

Grupuri sanitare;

Lift;

Spatiul de la parter beneficiaza de 2 terase de 80.9 mp si 41.1 mp

Total suprafata utila: 488 mp 

Parter suprafata utila: 354 mp

Etaj suprafata utila: 337 mp 

Parter: 17.700 Euro/luna + TVA  

Etaj: 7.751 Euro/luna + TVA

Tot spatiul: 25.567 Euro/ luna + TVA


download pdf
25.567 EUR  
0,47 BITCOIN  
16,40 ETHEREUM  
Vanzare
Regatta cod
RGT41330
Adauga la favorite

Contacteaza-ne

Comercial
+40724558848
retail@regatta.ro
Va rugam sa confirmati termenii si conditiile
Acest site foloseşte cookies. Navigând în continuare vă exprimați acordul asupra folosirii cookie-urilor.