Apartament de vanzare 4 camere Soseaua Nordului - Herastrau 176.67 mp

Caracteristici

ZONA
Nordului
Suprafata construita
176.67 mp
Nr. Dormitoare
3
Nr. camere
4
Nr. bai
4
Etaj
1, 2,3,4
An constructie
2027
Regim de inaltime
3S+P+6E
Nr. balcoane
2

Desfasurare

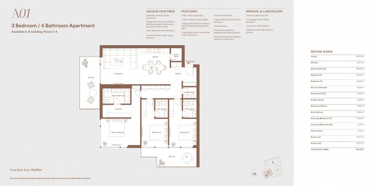
SUPRAFEȚE:

Living – 32,50 mp

Bucătărie – 8,37 mp

Dormitor matrimonial – 19,50 mp

Dormitor 01 – 12,36 mp

Dormitor 02 – 12,26 mp

Baie matrimonială – 6,05 mp

Baie 01/02 – 3,20 mp

Grup sanitar (powder room) – 2,06 mp

Hol intrare – 3,86 mp

Hol principal – 8,22 mp

Dressing (Dormitor 01) – 2,20 mp

Dressing (Dormitor 02) – 2,17 mp

Cămară – 1,70 mp

Balcon 01 – 15,57 mp

Balcon 02 – 13,57 mp

SUPRAFAȚĂ TOTALĂ CONSTRUITĂ: 176,67 mp

Descriere

Apartamentele oferite spre vanzare sunt parte a unui frumos complex rezidential situat intr-una dintre cele mai exclusiviste zone din Capitala, in Soseaua Nordului cu vedere directa spre Parcul Herastrau. 

Vecinatati: restaurante foarte cunoscute, cafenele elegante, parcuri, Herastrau si Bordei, Palatul Primaverii - Casa Ceausescu, Muzeul de Arta Recenta, sedii de ambasade.

Proiectul este destinat celor care își doresc o locuință într-o zonă liniștită și verde, dar fără a renunța la conectivitatea urbană și la luxul modern. Parcul Herăstrău, la doar câțiva pași distanță, oferă nenumărate opțiuni de recreere.

Stadiu actual este de structura si are ca termen de finalizare sfarsitul anului 2027.

Cele 3 imobile sunt dispuse pe 3S+P+6E si au 367 locuri parcare fiind prevazute mai multe tipuri de apartamente de 4 camere si apartamente tip duplex / penthouse.



download pdf
Vanzare
Regatta cod
RGT41622

Contacteaza-ne

Birouri
+40724558848
maria.linca@regatta.ro
Va rugam sa confirmati termenii si conditiile

Proprietati asemanatoare

Acest site foloseşte cookies. Navigând în continuare vă exprimați acordul asupra folosirii cookie-urilor.