Casa de vanzare la rosu 8 camere zona Dacia - Eminescu, Bucuresti 420 mp

Caracteristici

ZONA
B-dul Dacia
Suprafata construita
420 mp
Suprafata Teren
410 mp
Suprafata Gradina
270 mp
Nr. camere
8
Regim de inaltime
P+M

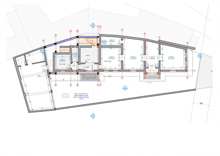
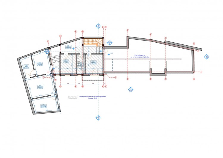
Descriere

Casa individuala veche oferita spre vanzare construita in stil clasic, continuata cu o constructie noua, situata chiar in imediata vecinatate a Parcului Icoanei si a Parcului Ioanid. Proprietatea este ofertanta prin faptul ca se vinde intreaga, cu un teren generos in proprietate, iar datorita locatiei beneficieaza de acces facil catre toate punctele de interes ale orasului.

Casa are parter + mansarda, insumeaza un spatiu de 370 mp utili (420 mp construiti), din care 55 mp ocupa garajul si se vinde la rosu. 

Casa are in proprietate un teren de 410 mp, din care 270 mp reprezinta curte libera. 

Situata chiar in inima orasului, aceasta casa are un potential enorm de a deveni o locuinta ca o oaza de liniste si verdeata chiar in centru Bucurestiului.

download pdf
395.000 EUR  
4,13 BITCOIN  
114,41 ETHEREUM  
Vanzare
Regatta cod
RGT41248
Adauga la favorite

Contacteaza-ne

rezidential
+40724558848
adina.zorzini@regatta.ro
Va rugam sa confirmati termenii si conditiile
Acest site foloseşte cookies. Navigând în continuare vă exprimați acordul asupra folosirii cookie-urilor.