Cladire comerciala premium de vanzare zona Bd. Timisoara - Prelungirea Ghencea, Bucuresti

Caracteristici

ZONA
B-dul Timisoara
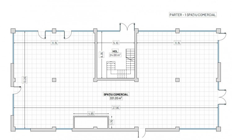
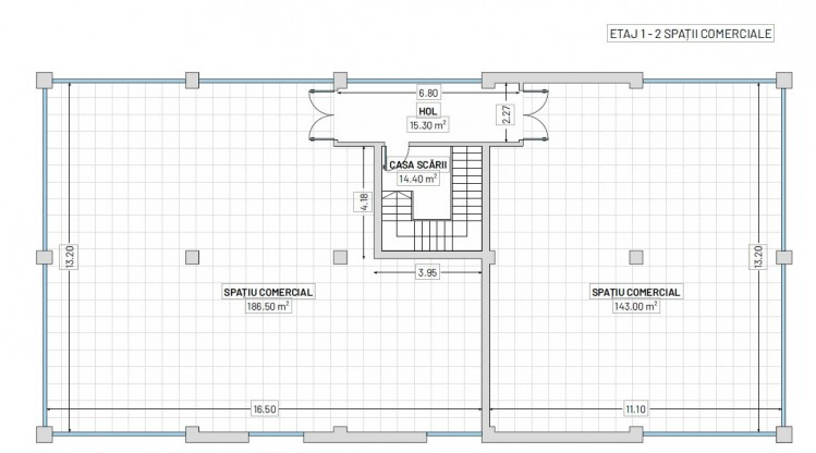
Suprafata utila
713 mp
Suprafata Teren
793 mp
Nr. locuri de parcare
23
An constructie
2022

Desfasurare

CLĂDIRE COMERCIALĂ PREMIUM

Suprafață utilă totală: 713 m²

Suprafață teren: 793 m²

23 locuri de parcare dedicate

Descriere

Se oferă spre vânzare un spațiu comercial amplasat strategic in zona Bulevardului Timisoara, într-o zonă cu trafic intens, vizibilitate excelentă și dezvoltare urbană accelerată.

Clădirea, finalizată în 2022, se remarcă prin design contemporan, fațadă complet vitrată și tâmplărie din aluminiu, fiind construită la standarde moderne de eficiență și durabilitate.

Spațiul este integral închiriat către doi chiriași de ancoră – un supermarket și o sală de fitness – prin contracte ferme pe 10 ani, oferind stabilitate și un flux constant de venituri.

CARACTERISTICI PRINCIPALE:

Construcție nouă (2022) – structură din beton armat, finisaje premium

Tâmplărie din aluminiu și vitrină generoasă la bulevard

Toate utilitățile racordate (apă, canalizare, energie electrică, internet)

Sistem electric de climatizare de înaltă eficiență

Acces direct din bulevard și vizibilitate excepțională

Zonă dens populată, în continuă dezvoltare rezidențială

Chiriași complementari (retail alimentar & fitness) cu trafic constant

INVESTMENT HIGHLIGHTS:

Contracte ferme pe 10 ani, cu escaladare graduală a chiriei

Chiriași stabili, cu bonitate financiară ridicată

Construcție modernă (2022) – întreținere minimă

Tâmplărie din aluminiu și vitrină completă - vizibilitate maximă

Poziționare excelentă pe bulevard principal, cu 23 locuri de parcare

download pdf
1.600.000 EUR + TVA
27,69 BITCOIN + TVA
914,87 ETHEREUM + TVA
Vanzare
Regatta cod
RGT41500
Adauga la favorite

Contacteaza-ne

Birouri
+40724558848
maria.linca@regatta.ro
Va rugam sa confirmati termenii si conditiile
Acest site foloseşte cookies. Navigând în continuare vă exprimați acordul asupra folosirii cookie-urilor.