3 room apartment with private garden in residential compound on Floreasca Lake Shore, Bucharest

Characteristics

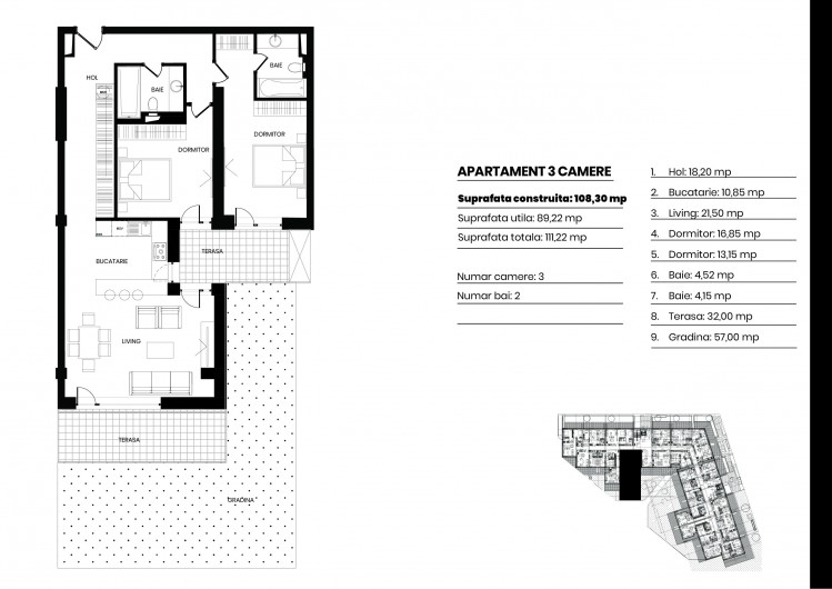
AREA
Floreasca
Usable surface
89.22 sqm
Built surface
108.33 sqm
Garden Surface
57 sqm
No. of Rooms
3
No. of Bathrooms
2
Floor
P
Construction year
2026
Balconies
1

Description

3-room apartment with private garden and direct lake view, located in a newly built boutique residential project, set in the heart of Bucharest’s northern corporate area, ideal for those seeking a modern, balanced lifestyle close to nature.

Apartment details

3-room apartment, ground floor, private garden, living room, kitchen, 2 bedrooms, 2 bathrooms, dressings, parking places with additional cost.

Private garden: 57 sqm, ideal for relaxation or leisure time

South-facing orientation, natural light throughout the day

Efficient and elegant layout, with generous and well-proportioned spaces, typical of a high-quality boutique project

Premium finishes & features

Durability and comfort are ensured through the use of top-quality materials and finishes:

Walls finished with washable paint in soft, neutral tones

White-painted gypsum board ceilings for enhanced brightness

Triple-layer engineered wood flooring in living room and bedrooms

Fully equipped bathrooms with non-slip ceramic tiles

Reinforced security entrance door and discreet tubular interior doors

Balconies with transparent glass railings, ceramic flooring, storage spaces, and rainwater drainage system

Advanced thermal comfort

High-efficiency multisplit air conditioning system with individual outdoor unit

Indoor units discreetly integrated into ceilings or chilled ceilings

Air-to-water heat pumps for maximum energy efficiency

Gas-fired central heating system located in the basement, supporting the heat pumps during very low outdoor temperatures

Underfloor heating throughout the apartment

Additional bathroom radiators for increased comfort

Building/ Project amenities

Underground parking

Schindler elevators or similar, capacity 7–9 persons

Modern construction, contemporary design, private boutique community

Premium location & spectacular views

Direct panoramic view over the lake, with landscaped and fenced park

Peace, privacy, and guaranteed relaxation

Quick access to the main business centers in Northern Bucharest

This apartment is the ideal choice for those seeking elegance, comfort, modern technology, and an exceptional location, with direct access to nature while enjoying all the advantages of urban living.

Facilities

  • Video Inter call
  • Elevator
  • Heating System
  • AC
  • Underfloor Heating
download pdf
347,000 EUR + VAT
5.93 BITCOIN + VAT
201.98 ETHEREUM + VAT
Sale
Regatta code
eRGT41517
Add to favorites

Contact us

Rezidential
+40724558848
marieroseuzunov@regatta.ro
Please confirm terms and conditions

Related estates

This site uses cookies. Sailing further you agree on the use of cookies.